|
|
Descriptions:
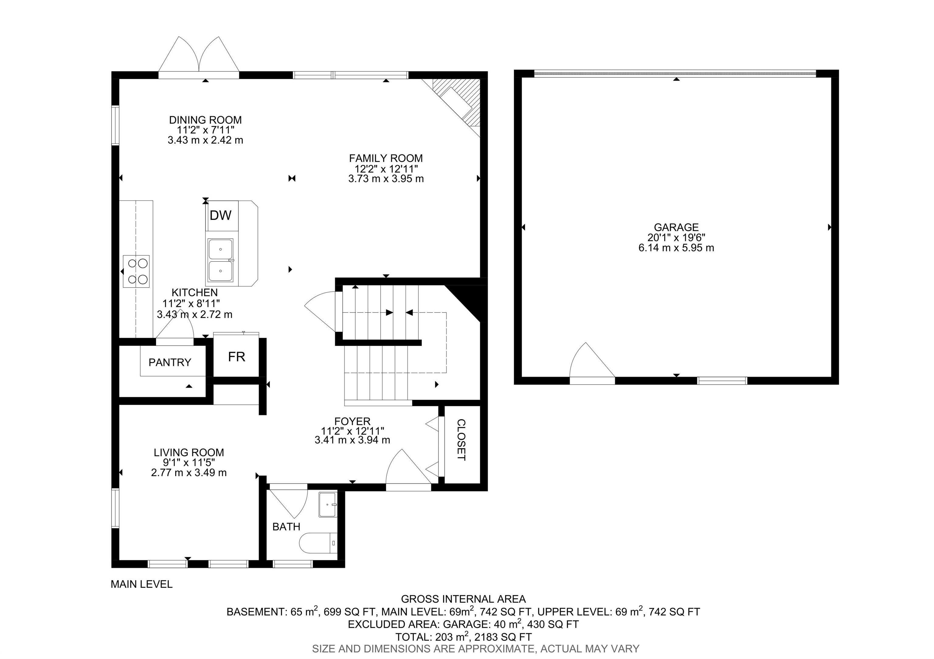
Perfect First Home, lcoated on a corner lot next to Trillium School, in Lakeland Ridge! Fully finished 2-storey half-duplex in a family-friendly neighborhood. Bright and inviting with a smart floor plan featuring a spacious living room with corner gas fireplace, adjoining dining nook, laminate flooring.The modern kitchen includes stainless steel appliances, glass tile backsplash, and island with an eating bar. Garden doors open to a two-tiered deck and private backyard--perfect for relaxing or entertaining. Main floor flex room ideal for a home office, plus a convenient 2-piece bathroom. Upstairs, find three bedrooms, a full 4-piece bath, and a primary suite with 4-piece ensuite. The basement adds a rec room, den ( with potential for 4th bedroom) 3-piece bathroom, laundry, and plenty of storage. Complete with double detached garage, extra parking pad, landscaped, and charming front verandah. Fantastic location, steps from Lakeland Ridge School, parks, playgrounds, shopping, and transit.
|
|
|
| Includes: |
|
Dishwasher-Built-In, Dryer, Garage Control, Garage Opener, Hood Fan, Refrigerator, Stove-Electric, Washer, Window Coverings |
|
|
|
|
|
| Site Influences: |
| Back Lane, Corner Lot, Fenced, Flat Site, Landscaped, Playground Nearby, Public Transportation, Schools, Shopping Nearby |
|
| Legal Description: |
| ACCESS Legal Description |
|
| Location & Listing Info: |
| Neighbourhood: |
Lakeland Ridge
|
|
| Lot Shape: |
Rectangular |
|
|
|
|
|
| Property Info: |
|
| Property Type: |
Half Duplex |
| Home Style: |
2 Storey |
| Year Built: |
2003 |
| Total Floor Area: |
1,485 sq. ft. |
| Front Exposure: |
West
|
|
|
|
|
|
| Exterior: |
|
| Exterior: |
Back Lane, Corner Lot, Fenced, Flat Site, Landscaped, Playground Nearby, Public Transportation, Schools, Shopping Nearby |
| Front Exposure: |
West |
| Roof: |
Asphalt Shingles |
|
|
|
|
|
|
|
|
|
|
| Rooms: |
|
| Total Bedrooms: |
3
(Bedrooms Above: 3)
|
| Bathrooms: |
Full: 3
/ Half: 1
|
| Rooms Above: |
6 |
|
|
|
|
|
| Additional Info: |
|
| Heating: |
Y |
| Basement: |
Full, Finished |
| Basement Type: |
Full, Finished |
| Floor Finish: |
Carpet, Laminate Flooring |
| Parking: |
Double Garage Detached |
|
|
|
|
|
|
|
|
|
|
|
|
|
|
|
 |
Contact Russian Edmonton Real Estate -
4107 99 Street, Edmonton, Alberta, T6E 3N4
|
|
|
|
|
|
|
|
|
|
Copyright 2026 by the REALTORS® Association of Edmonton. All Rights Reserved. Data is deemed reliable but is not guaranteed accurate by the REALTORS® Association of Edmonton. Data was last updated April 12, 2026, 8:40 pm. |
|
|
|
|
The data included on this website is deemed to be reliable, but is not guaranteed to be accurate by the REALTORS® Association of Edmonton.
MLS®, Multiple Listing Service®, and the associated logos are all registered certification marks owned by CREA and are used to identify real estate services provided by brokers and salespersons who are members of CREA. The trademarks REALTOR®, REALTORS® and the REALTOR® logo are controlled by The Canadian Real Estate Association (CREA) and identify real estate professionals who are members of CREA. Used under license.
|